Warszawa, Ursynów, Natolin, Lasek Brzozowy

Mieszkanie na sprzedaż

Opis nieruchomości

Ursynów - NATOLIN ul. Lasek Brzozowy

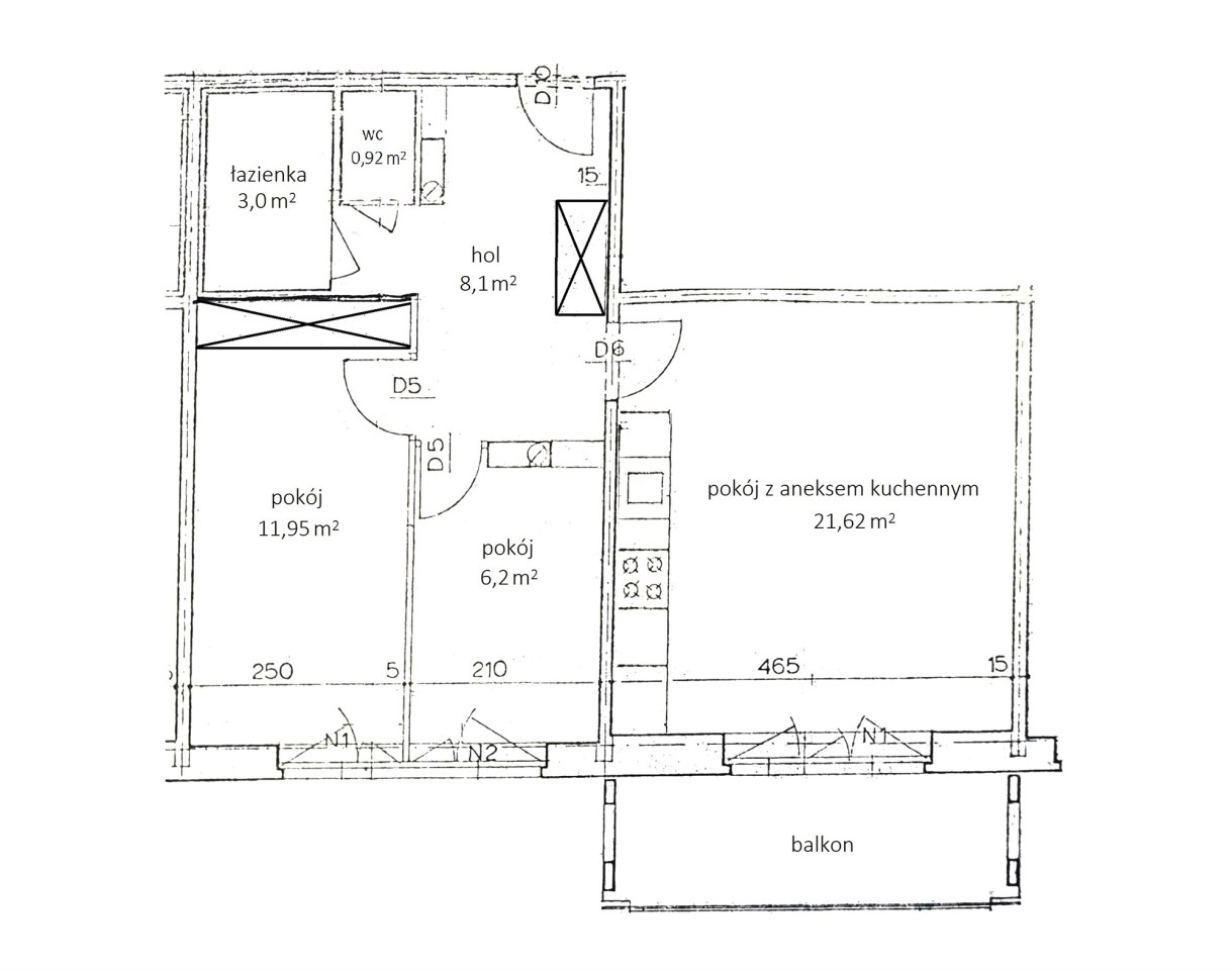
Mieszkanie 3-pokojowe zlokalizowane na zielonym Ursynowie w bliskim sąsiedztwie metra (3-4 minuty do stacji metra Natolin) i przystanków autobusowych. Położone jest na 12-stym, ostatnim piętrze z ekspozycją wschodnią.

Mieszkanie o bardzo funkcjonalnym rozkładzie pomieszczeń. 

Pokój dzienny z aneksem kuchennym 21.62m2 - na podłodze panele.
Aneks kuchenny zabudowany meblami kuchennymi oraz wyposażony w sprzęt AGD (płyta gazowa, pochłaniacz, lodówko-zamrażarka, zmywarka).
Balkon - loggia ok. 6m2, zabezpieczona siatką chroniącą.
Pokój 11.95m2 - na podłodze panele, dodatkowo zabudowana jest pojemna szafa wnękowa.
Pokój 6.2m2 - na podłodze panele.
Łazienka 3m2 - terakota, glazura, umywalka, wanna, pralka.
Toaleta 0.92m2. terakota, glazura.
Hol 8.1m2 - na podłodze panele, dodatkowo znajdziemy tu pojemną szafę na ubrania.

W mieszkaniu zainstalowana wydajna klimatyzacja, wymienione okna na PCV.

Do mieszkania przynależy schowek o powierzchni 3.3m2.

PARKING
Miejsca parkingowe wokół budynku są ogólnodostępne, możliwe jest także parkowanie pod blokiem za szlabanem (należy wykupić pilot w Spółdzielni - koszt jednorazowo 120zł).

BUDYNEK
Budynek wybudowany w 1984 roku, w bardzo dobrym stanie po ociepleniu ścian, modernizacji elewacji zewnętrznej i remoncie dachu. Czysta odnowiona klatka schodowa, domofon. W budynku dwie nowe windy poruszające się w zakresie pięter od parteru do 11 piętra. Na 12 piętro wchodzimy po schodach.

ATRAKCYJNA LOKALIZACJA
W najbliższym sąsiedztwie żłobek, przedszkole i szkoła podstawowa, dużo sklepów (piekarnie, warzywniak, mięsny, cukiernie itp.) jak i marketów (m.in. Biedronka, FRAC, Żabka, Stokrotka), bazarek osiedlowy czynny w weekendy, drogerie (Rossmann, Hebe), paczkomaty.
W okolicy Park Natoliński, Park Lasek Brzozowy, Park Linearny nad POW, liczne trasy spacerowe i rowerowe prowadzące m.in do Lasu Kabackiego czy parku w Powsinie.
Szybki dostęp do Południowej Obwodnicy Warszawy.

STAN PRAWNY
Spółdzielcze własnościowe prawo do lokalu z założoną księgą wieczystą (bez obciążeń).
Grunt pod budynkiem uregulowany, przekształcony we własność.
Możliwy jest zakup mieszkania na kredyt hipoteczny.

OPŁATY ADMINISTRACYJNE
Czynsz za mieszkanie wynosi 1189zł/m-c z zawartym funduszem remontowym, dużymi zaliczkami na media (ciepła i zimna woda, ogrzewanie oraz opłata za wywóz nieczystości).

Pełna galeria zdjęć nieruchomości na stronie www daszkiewicz pl

ZAPRASZAM NA PREZENTACJĘ NIERUCHOMOŚCI!

OFERTA NA WYŁĄCZNOŚĆ - pośrednik odpowiedzialny: Michał Daszkiewicz 505-115-880 (Licencja Zawodowa nr 5967).
Powyższa informacja nie stanowi oferty w rozumieniu Kodeksu Cywilnego.

 

Nota prawna

Opis oferty zawarty na stronie internetowej sporządzany jest na podstawie oględzin nieruchomości oraz informacji uzyskanych od właściciela, może podlegać aktualizacji i nie stanowi oferty określonej w art. 66 i następnych K.C.

Szczegóły oferty

Symbol oferty DAS-MS-2546
Powierzchnia 52,00 m²
Powierzchnia balkonów/tarasów 6,00 m²
Liczba pokoi 3
Piętro 12
Rodzaj budynku blok
Technologia budowlana płyta po termomodernizacji
Standard
Opłaty w czynszu administracja, CO, fundusz remontowy, Winda, woda, wywóz nieczystości
Opłaty wg liczników gaz, prąd
Liczba pięter w budynku 12
Piwnica 3,30 m²
Stan lokalu dobry
Stan prawny SPÓŁDZIELCZE WŁASNOŚCIOWE Z KW
Mies. czynsz admin. 1 189 PLN
Okna PCV
Instalacje częściowo wymienione
Balkon loggia
Liczba balkonów 1
Rok budowy 1984
Widok panorama miasta
Gaz tak - miejski
Woda tak - miejska
Dojazd asfaltowa/kostka
Ogrzewanie miejskie
Winda tak
Liczba wind 2
Usytuowanie środkowe

Pomieszczenia

Powierzchnia pokoi 21.62m, 11.95m, 6.2m m2
Podłogi pokoi panele
Typ kuchni umeblowana i wyposażona
Rodzaj kuchni aneks kuchenny - połączony z salonem
Podłoga kuchni panele
Typ łazienki osobno z wc
Liczba łazienek 1
Powierzchnia łazienki 3 m2
Glazura łazienki glazura
Podłoga łazienki terakota
Liczba WC 1
Powierzchnia WC 0,92 m2
Glazura WC glazura
Podłoga WC terakota
Liczba przedpokoi 1
Powierzchnia przedpokoi 8,1 m2
Podłoga przedpokoi panele

Lokalizacja

Kalkulator kredytowy

PLN
%
Wysokość raty

Kalkulator kosztów

PLN
PLN
PLN
PLN
PLN
PLN
%
PLN
Podatek od czynności cywilno-prawnych
Taksa notarialna (opłata notarialna)
VAT od taksy notarialnej (opłaty notarialnej)
Wniosek do WKW
VAT od wniosku do WKW
Prowizja agencji nieruchomości
VAT od prowizji agencji nieruchomości
Wypisy aktu notarialnego - około
RAZEM (cena + opłaty)

Podobne oferty

mieszkanie na sprzedaż - Warszawa, Ursynów, Imielin, Hirszfelda

mieszkanie na sprzedaż

Warszawa, Ursynów, Imielin, Hirszfelda
4 pokoje 75,00 m2 12 400,00 zł/m2
mieszkanie na sprzedaż - Warszawa, Żoliborz, Stary Żoliborz, ks. Teofila Boguckiego

mieszkanie na sprzedaż

Warszawa, Żoliborz, Stary Żoliborz, ks. Teofila…
3 pokoje 56,00 m2 16 517,86 zł/m2
oferta na wyłączność
mieszkanie na sprzedaż - Warszawa, Mokotów, Sadyba, Jaszowiecka

mieszkanie na sprzedaż

Warszawa, Mokotów, Sadyba, Jaszowiecka
2 pokoje 41,00 m2 18 902,44 zł/m2
oferta na wyłączność
mieszkanie na sprzedaż - Warszawa, Ursynów, Stokłosy, Jana Cybisa

mieszkanie na sprzedaż

Warszawa, Ursynów, Stokłosy, Jana Cybisa
4 pokoje 63,40 m2 12 586,75 zł/m2

Napisz do nas

Proszę wypełnić to pole
Proszę wypełnić to pole
Proszę wypełnić to pole
Proszę wypełnić to pole
Trwa wysyłanie...

Ta strona wykorzystuje pliki cookies w celach statystycznych oraz w celu dostosowania naszych serwisów do indywidualnych potrzeb klientów. Zmiany ustawień dotyczących plików cookie można dokonać w dowolnej chwili modyfikując ustawienia przeglądarki. Korzystanie z tej strony bez zmian ustawień dotyczących cookies oznacza, że będą one zapisane w pamięci urządzenia.

rozumiem