Opis nieruchomości
Ursynów - NATOLIN ul. Lasek Brzozowy
Mieszkanie 3-pokojowe zlokalizowane na zielonym Ursynowie w bliskim sąsiedztwie metra (3-4 minuty do stacji metra Natolin) i przystanków autobusowych. Położone jest na 12-stym, ostatnim piętrze z ekspozycją wschodnią.
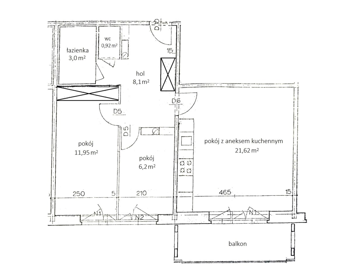
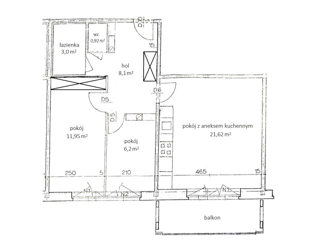
Mieszkanie o bardzo funkcjonalnym rozkładzie pomieszczeń.
Pokój dzienny z aneksem kuchennym 21.62m
2 - na podłodze panele.
Aneks kuchenny zabudowany meblami kuchennymi oraz wyposażony w sprzęt AGD (płyta gazowa, pochłaniacz, lodówko-zamrażarka, zmywarka).
Balkon - loggia ok. 6m
2, zabezpieczona siatką chroniącą.
Pokój 11.95m
2 - na podłodze panele, dodatkowo zabudowana jest pojemna szafa wnękowa.
Pokój 6.2m
2 - na podłodze panele.
Łazienka 3m
2 - terakota, glazura, umywalka, wanna, pralka.
Toaleta 0.92m
2. terakota, glazura.
Hol 8.1m
2 - na podłodze panele, dodatkowo znajdziemy tu pojemną szafę na ubrania.
W mieszkaniu zainstalowana wydajna klimatyzacja, wymienione okna na PCV.
Do mieszkania przynależy schowek o powierzchni 3.3m
2.
PARKING
Miejsca parkingowe wokół budynku są ogólnodostępne, możliwe jest także parkowanie pod blokiem za szlabanem (należy wykupić pilot w Spółdzielni - koszt jednorazowo 120zł).
BUDYNEK
Budynek wybudowany w 1984 roku, w bardzo dobrym stanie po ociepleniu ścian, modernizacji elewacji zewnętrznej i remoncie dachu. Czysta odnowiona klatka schodowa, domofon, rowerownia/wózkownia. W budynku dwie nowe windy poruszające się w
zakresie pięter od parteru do 11 piętra. Na 12 piętro wchodzimy po schodach.
ATRAKCYJNA LOKALIZACJA
W najbliższym sąsiedztwie żłobek, przedszkole i szkoła podstawowa, dużo sklepów (piekarnie, warzywniak, mięsny, cukiernie itp.) jak i marketów (m.in. Biedronka, FRAC, Żabka, Stokrotka), bazarek osiedlowy czynny w weekendy, drogerie (Rossmann, Hebe), paczkomaty.
W okolicy Park Natoliński, Park Lasek Brzozowy, Park Linearny nad POW, liczne trasy spacerowe i rowerowe prowadzące m.in do Lasu Kabackiego czy parku w Powsinie.
Szybki dostęp do Południowej Obwodnicy Warszawy.
STAN PRAWNY
Spółdzielcze własnościowe prawo do lokalu z założoną księgą wieczystą (bez obciążeń).
Grunt pod budynkiem uregulowany, przekształcony we własność.
Możliwy jest zakup mieszkania na kredyt hipoteczny.
OPŁATY ADMINISTRACYJNE
Czynsz za mieszkanie wynosi ok. 1200zł/m-c z zawartym funduszem remontowym, dużymi zaliczkami na media (ciepła i zimna woda, ogrzewanie oraz opłata za wywóz nieczystości).
Pełna galeria zdjęć nieruchomości na stronie www daszkiewicz pl
ZAPRASZAM NA PREZENTACJĘ NIERUCHOMOŚCI!
OFERTA NA WYŁĄCZNOŚĆ - pośrednik odpowiedzialny: Michał Daszkiewicz 505-115-880 (Licencja Zawodowa nr 5967).
Powyższa informacja nie stanowi oferty w rozumieniu Kodeksu Cywilnego.
Nota prawna
Opis oferty zawarty na stronie internetowej sporządzany jest na podstawie oględzin nieruchomości oraz informacji uzyskanych od właściciela, może podlegać aktualizacji i nie stanowi oferty określonej w art. 66 i następnych K.C.