Opis nieruchomości
MOKOTÓW – Siekierki ul. Polska
Nieruchomość z duszą i potencjałem – nowego właściciela poszukuje atrakcyjny dom położony na terenie zielonego Mokotowa w dogodnej lokalizacji zapewniającej szybkie i wygodne połączenie z centrum Warszawy wraz ze znajdującymi się na posesji: budynkiem gospodarczym, letnią kuchnią i garażem, usytuowane na pięknie zagospodarowanej działce o powierzchni 496 m.
Nieruchomość ta stanowi doskonała propozycja zarówno dla rodziny, osób łączących funkcję mieszkalną z prowadzeniem działalności gospodarczej jak i inwestora szukającego możliwości wynajmu.
DOM
Budynek wybudowany w latach 30-tych ubiegłego wieku, spalony podczas wojny, następnie odbudowany w latach 1945-1946 i gruntownie wyremontowany około 2000 roku, będący w całym tym okresie w posiadaniu jednej rodziny.
Budynek mieszkalny o powierzchni użytkowej 106m (parter z piętrem z oknami połaciowymi, częściowo podpiwniczony).
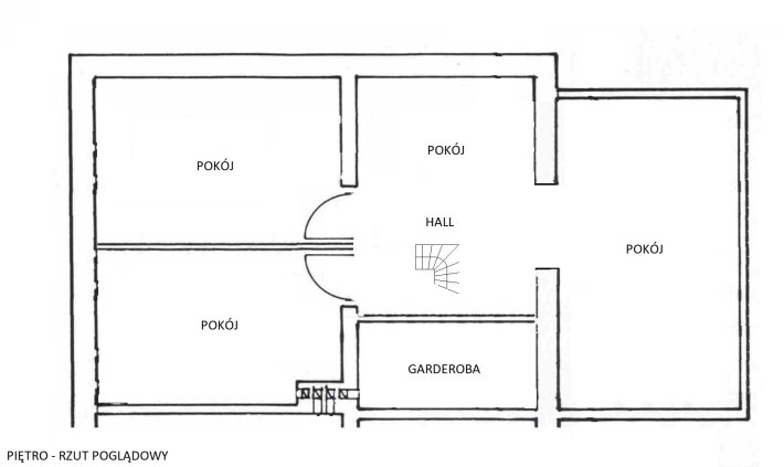
ROZKŁAD POMIESZCZEŃ
PATER (okna tradycyjne):
Duży salon z wyjściem na taras – na podłodze terakota, kominek, schody na piętro (widok w kierunku południowo-wschodnim).
Kuchnia z wyjściem do ogrodu – na podłodze terakota, zabudowa meblami z AGD (widok w kierunku północno-zachodnim).
Pokój - na podłodze deska (widok w kierunku północno-zachodnim).
Łazienka z wanną i umywalką – terakota, glazura (widok w kierunku południowo-wschodnim).
Łazienka z kabiną prysznicową, szafkoumywalką, wc, bidetem, szafą – terakota, glazura.
Hall z szafą – terakota.
PIĘTRO (okna połaciowe):
Trzy pokoje – na podłodze deska (dwa z widokiem w kierunku północno-zachodnim i jeden w kierunku południowo-wschodnim oraz południowo-zachodnim).
Pokój otwarty na hall ze schodami – na podłodze deska (widok w kierunku południowo-wschodnim i południowo-zachodnim).
Garderoba.
BUDYNEK GOSPODARCZY
Budynek gospodarczy wybudowany w latach 50-tych ubiegłego wieku, gruntownie wyremontowany około 2000 roku.
Budynek gospodarczy o powierzchni użytkowej 132m.
ROZKŁAD POMIESZCZEŃ
Letnia kuchnia – na podłodze terakota, szafki kuchenne AGD (widok w kierunku północno-zachodnim).
Pomieszczenie gospodarcze – na podłodze beton (widok w kierunku północno-zachodnim).
Garaż z kanałem - na podłodze beton (widok w kierunku północno-wschodnim).
TECHNOLOGIA BUDOWY
DOM: ściany zewnętrzne i konstrukcyjne z cegły pełnej grubości 38cm, ściany działowe z cegły pełnej grubości 12cm, strop nad parterem na belkach drewnianych, dach kryty gontem bitumicznym, okna plastikowe, drzwi antywłamaniowe, piec dwufunkcyjny, grzejniki płytowe.
BUDYNEK GOSPODARCZY: ściany zewnętrzne i konstrukcyjne z cegły pełnej grubości 28-32cm, dach kryty blachą trapezową,
MEDIA I INSTALACJE
Media: gaz, woda miejska, szambo (kanalizacja na etapie projektowym), prąd/siła.
Instalacje: elektryczna, wodno-kanalizacyjna, C.O., gazowa i domofon.
LOKALIZACJA
Nieruchomość położona jest na terenie cichego i zielonego Mokotowa w odległości 1km od Wisły. Lokalizacja ta zapewnia szybkie i wygodne połączenie z centrum Warszawy, przystanek komunikacji miejskiej w odległości 100m. Okolica zabudowana niskimi budynkami mieszkalnymi. W pobliżu bogata infrastruktura handlowo usługowa.
Pełna galeria zdjęć nieruchomości na stronie www Daszkiewicz pl.
OFERTA NA WYŁĄCZNOŚĆ - pośrednik odpowiedzialny: Marcin Daszkiewicz 504-217-464 (Licencja Zawodowa nr 6537).
Powyższa informacja nie stanowi oferty w rozumieniu Kodeksu Cywilnego.
Nota prawna
Opis oferty zawarty na stronie internetowej sporządzany jest na podstawie oględzin nieruchomości oraz informacji uzyskanych od właściciela, może podlegać aktualizacji i nie stanowi oferty określonej w art. 66 i następnych K.C.