Warszawa, Ursynów, Natolin, Lasek Brzozowy

Mieszkanie na sprzedaż

Opis nieruchomości

Ursynów - NATOLIN ul. Lasek Brzozowy

Bardzo ładne mieszkanie 3-pokojowe zlokalizowane na zielonym Ursynowie w bliskim sąsiedztwie metra. Położone jest na 12-stym, ostatnim piętrze. Wszystkie okna to ekspozycja wschodnia, co pomaga w codziennej motywacji do rozpoczęcia dnia z przytupem, a także gwarantuje cudowny widok na rozpościerającą się aż po horyzont panoramę w kierunku wschodnim.

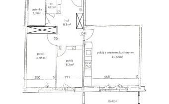
ROZKŁAD POMIESZCZEŃ
Mieszkanie o bardzo funkcjonalnym, ergonomicznym i praktycznym rozkładzie pomieszczeń. 

Pokój dzienny z aneksem kuchennym 21.62m2 - na podłodze panele. Z pokoju wyjście na obszerny balkon - loggię ok. 6m2, który zabezpieczony jest siatką chroniącą dzieci czy zwierzęta przed wypadnięciem oraz dodatkowo tworzy barierę przed ptakami i pomaga zachować czystość balkonu.
Aneks kuchenny jest zabudowany meblami kuchennymi oraz wyposażony w sprzęt AGD (płyta gazowa, pochłaniacz, lodówko-zamrażarka).
Pokój 11.95m2 - na podłodze panele, dodatkowo zabudowana jest pojemna szafa wnękowa.
Pokój 6.2m2 - na podłodze panele.
Łazienka 3m2 - terakota, glazura, umywalka, wanna, pralka.
Toaleta 0.92m2. terakota, glazura.
Hol 8.1m2 - na podłodze panele, dodatkowo znajdziemy tu pojemną szafę na ubrania.

W mieszkaniu jest zainstalowana wydajna klimatyzacja.

Do mieszkania przynależy bardzo praktyczny schowek położony na piętrze tuż obok mieszkania o powierzchni około 3.3m2.

W mieszkaniu zostały wymienione okna na PCV oraz jest wymieniona instalacja wodno-kanalizacyjna.

PARKING
Miejsca parkingowe wokół budynku są ogólnodostępne, możliwe jest także parkowanie pod blokiem za szlabanem (należy wykupić pilot w Spółdzielni - koszt jednorazowo 120zł).

BUDYNEK
Budynek wybudowany w 1984 roku, aktualnie w stanie bardzo dobrym po ociepleniu ścian i modernizacji elewacji zewnętrznej i remoncie dachu, czysta odnowiona klatka schodowa, domofon.
W budynku dwie nowe windy poruszające się w zakresie pięter od parteru do 11 piętra. Mieszkanie znajduje się na 12 piętrze – ostatnie piętro pokonujemy po schodach, do przejścia pozostaje 16 stopni.

ATRAKCYJNA LOKALIZACJA
Budynek położony jest w spokojnej, pełnej zieleni okolicy, zaledwie 3-4 minuty spacerem od stacji metra Natolin, tuż obok znajduje się także przystanek autobusowy.
W najbliższym sąsiedztwie znajdziemy praktycznie wszystko, co niezbędne do życia. Dużo sklepów osiedlowych (piekarnie, warzywniak, mięsny, cukiernie itp.) jak i marketów (m.in. Biedronka, FRAC, Żabka, Stokrotka), bazarek osiedlowy czynny w weekendy, drogerie (Rossmann, Hebe), paczkomaty i wiele więcej.
Dla dzieci mamy w sąsiedztwie żłobek, przedszkole i szkołę podstawową.
W najbliższej okolicy jest Park Lasek Brzozowy z placem zabaw i boiskiem do piłki nożnej/koszykówki, niedaleko jest Park Linearny nad POW, w okolicy natomiast liczne trasy spacerowe i rowerowe prowadzące m.in do Lasu Kabackiego czy parku w Powsinie.
Dużą wygodę stanowi także bardzo szybki dostęp do Południowej Obwodnicy Warszawy.

STAN PRAWNY
Spółdzielcze własnościowe prawo do lokalu z założoną księgą wieczystą (bez żadnych obciążeń).
Grunt pod budynkiem uregulowany, przekształcony we własność.
Możliwy jest zakup mieszkania na kredyt hipoteczny.

OPŁATY ADMINISTRACYJNE
Czynsz za mieszkanie wynosi 1189zł/m-c z zawartym funduszem remontowym, dużymi zaliczkami na media (ciepła i zimna woda, ogrzewanie oraz opłata za wywóz nieczystości).
Budynkiem administruje Spółdzielnia Mieszkaniowo-Budowlana PRZY METRZE.

Pełna galeria zdjęć nieruchomości na stronie www daszkiewicz pl

ZAPRASZAM NA PREZENTACJĘ NIERUCHOMOŚCI!

OFERTA NA WYŁĄCZNOŚĆ - pośrednik odpowiedzialny: Michał Daszkiewicz 505-115-880 (Licencja Zawodowa nr 5967).
Powyższa informacja nie stanowi oferty w rozumieniu Kodeksu Cywilnego.

 

Nota prawna

Opis oferty zawarty na stronie internetowej sporządzany jest na podstawie oględzin nieruchomości oraz informacji uzyskanych od właściciela, może podlegać aktualizacji i nie stanowi oferty określonej w art. 66 i następnych K.C.

Szczegóły oferty

Symbol oferty DAS-MS-2524
Powierzchnia 52,00 m²
Powierzchnia balkonów/tarasów 6,00 m²
Liczba pokoi 3
Piętro 12
Rodzaj budynku blok
Technologia budowlana płyta po termomodernizacji
Standard
Opłaty w czynszu administracja, CO, fundusz remontowy, Winda, woda, wywóz nieczystości
Opłaty wg liczników gaz, prąd
Liczba pięter w budynku 12
Piwnica 3,30 m²
Stan lokalu dobry
Stan prawny SPÓŁDZIELCZE WŁASNOŚCIOWE Z KW
Mies. czynsz admin. 1 189 PLN
Okna PCV
Instalacje częściowo wymienione
Balkon loggia
Liczba balkonów 1
Rok budowy 1984
Widok panorama miasta
Gaz tak - miejski
Woda tak - miejska
Dojazd asfaltowa/kostka
Ogrzewanie miejskie
Winda tak
Liczba wind 2
Usytuowanie środkowe

Pomieszczenia

Powierzchnia pokoi 21.62m, 11.95m, 6.2m m2
Podłogi pokoi panele
Typ kuchni umeblowana i wyposażona
Rodzaj kuchni aneks kuchenny - połączony z salonem
Podłoga kuchni panele
Typ łazienki osobno z wc
Liczba łazienek 1
Powierzchnia łazienki 3 m2
Glazura łazienki glazura
Podłoga łazienki terakota
Liczba WC 1
Powierzchnia WC 0,92 m2
Glazura WC glazura
Podłoga WC terakota
Liczba przedpokoi 1
Powierzchnia przedpokoi 8,1 m2
Podłoga przedpokoi panele

Lokalizacja

Kalkulator kredytowy

PLN
%
Wysokość raty

Kalkulator kosztów

PLN
PLN
PLN
PLN
PLN
PLN
%
PLN
Podatek od czynności cywilno-prawnych
Taksa notarialna (opłata notarialna)
VAT od taksy notarialnej (opłaty notarialnej)
Wniosek do WKW
VAT od wniosku do WKW
Prowizja agencji nieruchomości
VAT od prowizji agencji nieruchomości
Wypisy aktu notarialnego - około
RAZEM (cena + opłaty)

Podobne oferty

mieszkanie na sprzedaż - Warszawa, Ursynów, Stokłosy, Jana Cybisa

mieszkanie na sprzedaż

Warszawa, Ursynów, Stokłosy, Jana Cybisa
4 pokoje 63,40 m2 12 586,75 zł/m2
mieszkanie na sprzedaż - Warszawa, Ursynów, Imielin, Hirszfelda

mieszkanie na sprzedaż

Warszawa, Ursynów, Imielin, Hirszfelda
4 pokoje 75,00 m2 12 400,00 zł/m2
oferta na wyłączność
mieszkanie na sprzedaż - Warszawa, Żoliborz, Stary Żoliborz, ks. Teofila Boguckiego

mieszkanie na sprzedaż

Warszawa, Żoliborz, Stary Żoliborz, ks. Teofila…
3 pokoje 56,00 m2 16 517,86 zł/m2

Napisz do nas

Proszę wypełnić to pole
Proszę wypełnić to pole
Proszę wypełnić to pole
Proszę wypełnić to pole
Trwa wysyłanie...

Ta strona wykorzystuje pliki cookies w celach statystycznych oraz w celu dostosowania naszych serwisów do indywidualnych potrzeb klientów. Zmiany ustawień dotyczących plików cookie można dokonać w dowolnej chwili modyfikując ustawienia przeglądarki. Korzystanie z tej strony bez zmian ustawień dotyczących cookies oznacza, że będą one zapisane w pamięci urządzenia.

rozumiem