Warszawa, Ursynów, Stokłosy, Jana Cybisa

Mieszkanie na sprzedaż

Opis nieruchomości

URSYNÓW - Stokłosy ul. Cybisa

Funkcjonalne 4-pokojowe mieszkanie usytuowane na Stokłosach w odległości 9 min. spacerem od stacji metra, położone na 4 (ostatnim) piętrze w budynku z 1978 roku (blok z wielkiej płyty po termomodernizacji i wymianie instalacji usytuowany w cichej i zielonej okolicy).

Mieszkanie widne i słoneczne (duże okna PCV, wystawa w kierunku południowym i północnym), ciche i ciepłe. Miłe i kulturalne sąsiedztwo.

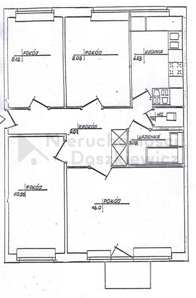
ROZKŁAD POMIESZCZEŃ
Pokoje o pow. 16m, 10.55m, 9.03m i 8.12m – we wszystkich na podłodze ładna mozaika drewniana, z największego z pokoi wyjście na balkon 3m.

Kuchnia (oddzielna i widna) o pow. 6.58 - terakota, zabudowa meblami z AGD: lodówko-zamrażalka, kuchnia gazowo-elektryczna i okap.
Łazienka o pow. 3.08m - terakota, glazura, wanna, umywalka i pralka.

Oddzielne WC o pow. 0.9m – terakota, glazura, WC.
W przedpokoju na podłodze ładna mozaika, na wyposażeniu szafa w stałej zabudowie, pawlacz i wieszak.

Do mieszkania przynależy piwnica 4m.

STAN PRAWNY i OPŁATY EKSPLOATACYJNE
Spółdzielcze własnościowe prawo do lokalu.
Własność gruntu pod budynkiem.
Możliwość założenia księgi wieczystej (np. przy finansowaniu zakupu kredytem bankowym).
Czynsz za mieszkanie 1268,04 PLN/m-c z zawartym funduszem remontowym i dużymi zaliczkami na media (ogrzewanie, woda, gaz i wywóz śmieci).

Pełna galeria zdjęć nieruchomości na stronie www daszkiewicz pl

Zapraszam do kontaktu!

OFERTA NA WYŁĄCZNOŚĆ - pośrednik odpowiedzialny: Marcin Daszkiewicz 504-217-464 (Licencja Zawodowa nr 6537).

Powyższa informacja nie stanowi oferty w rozumieniu Kodeksu Cywilnego

Nota prawna

Opis oferty zawarty na stronie internetowej sporządzany jest na podstawie oględzin nieruchomości oraz informacji uzyskanych od właściciela, może podlegać aktualizacji i nie stanowi oferty określonej w art. 66 i następnych K.C.

Szczegóły oferty

Symbol oferty DAS-MS-2574
Powierzchnia 63,40 m²
Powierzchnia użytkowa 63,40 m²
Powierzchnia balkonów/tarasów 3,00 m²
Liczba pokoi 4
Piętro 4
Rodzaj budynku blok
Technologia budowlana wielka płyta
Standard
Opłaty w czynszu CO, fundusz remontowy, gaz, woda, wywóz śmieci
Opłaty wg liczników prąd
Liczba pięter w budynku 4
Piwnica 4,00 m²
Stan lokalu dobry
Stan prawny Spółdzielcze własnościowe
Mies. czynsz admin. 1 268 PLN
Okna PCV
Instalacje wymienione
Balkon jest
Liczba balkonów 1
Rok budowy 1978
Plac zabaw tak
Gaz tak - miejski
Woda tak - miejska
Dojazd asfaltowa/kostka
Ogrzewanie miejskie
Usytuowanie dwustronne
Drzwi antywłamaniowe tak

Pomieszczenia

Powierzchnia pokoi 16, 10.55, 9.03, 8.12 m2
Podłogi pokoi mozaika parkietowa
Typ kuchni oddzielna
Rodzaj kuchni oddzielna i widna
Powierzchnia kuchni 6.58 m2
Podłoga kuchni terakota
Typ łazienki osobno z wc
Liczba łazienek 1
Powierzchnia łazienki 3.08 m2
Glazura łazienki nowego typu
Podłoga łazienki terakota
Wyposażenie łazienki lustro, pralka, umywalka, wanna
Liczba WC 1
Powierzchnia WC 0.9 m2
Glazura WC nowego typu
Podłoga WC terakota

Lokalizacja

Kalkulator kredytowy

PLN
%
Wysokość raty

Kalkulator kosztów

PLN
PLN
PLN
PLN
PLN
PLN
%
PLN
Podatek od czynności cywilno-prawnych
Taksa notarialna (opłata notarialna)
VAT od taksy notarialnej (opłaty notarialnej)
Wniosek do WKW
VAT od wniosku do WKW
Prowizja agencji nieruchomości
VAT od prowizji agencji nieruchomości
Wypisy aktu notarialnego - około
RAZEM (cena + opłaty)

Uwaga: mogą wystąpić dodatkowe opłaty za założenie księgi wieczystej oraz ustanowienie hipoteki.

Podobne oferty

oferta na wyłączność
mieszkanie na sprzedaż - Warszawa, Ursynów, Natolin, Na Uboczu

mieszkanie na sprzedaż

Warszawa, Ursynów, Natolin, Na Uboczu
3 pokoje 47,20 m2 14 788,14 zł/m2
oferta na wyłączność
mieszkanie na sprzedaż - Warszawa, Ursynów, Natolin, Żabińskiego

mieszkanie na sprzedaż

Warszawa, Ursynów, Natolin, Żabińskiego
3 pokoje 63,30 m2 12 875,20 zł/m2
oferta na wyłączność
mieszkanie na sprzedaż - Warszawa, Mokotów, Sadyba, Jaszowiecka

mieszkanie na sprzedaż

Warszawa, Mokotów, Sadyba, Jaszowiecka
2 pokoje 41,00 m2 18 902,44 zł/m2
oferta na wyłączność
mieszkanie na sprzedaż - Warszawa, Mokotów, Sielce, Stępińska

mieszkanie na sprzedaż

Warszawa, Mokotów, Sielce, Stępińska
2 pokoje 54,30 m2 16 390,42 zł/m2

Napisz do nas

Proszę wypełnić to pole
Proszę wypełnić to pole
Proszę wypełnić to pole
Proszę wypełnić to pole
Trwa wysyłanie...

Ta strona wykorzystuje pliki cookies w celach statystycznych oraz w celu dostosowania naszych serwisów do indywidualnych potrzeb klientów. Zmiany ustawień dotyczących plików cookie można dokonać w dowolnej chwili modyfikując ustawienia przeglądarki. Korzystanie z tej strony bez zmian ustawień dotyczących cookies oznacza, że będą one zapisane w pamięci urządzenia.

rozumiem