Warszawa, Mokotów, Sadyba, Jaszowiecka

Mieszkanie na sprzedaż

Opis nieruchomości

Mokotów - SADYBA ul. Jaszowiecka 8

Bardzo ładne mieszkanie 2-pokojowe położone w budynku z 2002 roku zlokalizowanym na Sadybie tuż przy Parku im. Stanisława Dygata.
Mieszkanie widne i słoneczne - okna od strony zachodniej. Widok z okien na niedużą uliczkę osiedlową oraz zielone otwarte skwery pomiędzy budynkami dzięki czemu mamy zapewnioną ciszę i spokój.

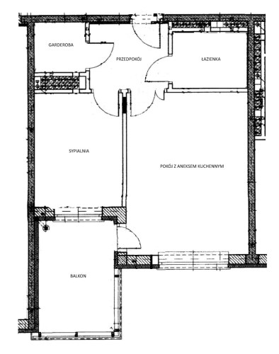
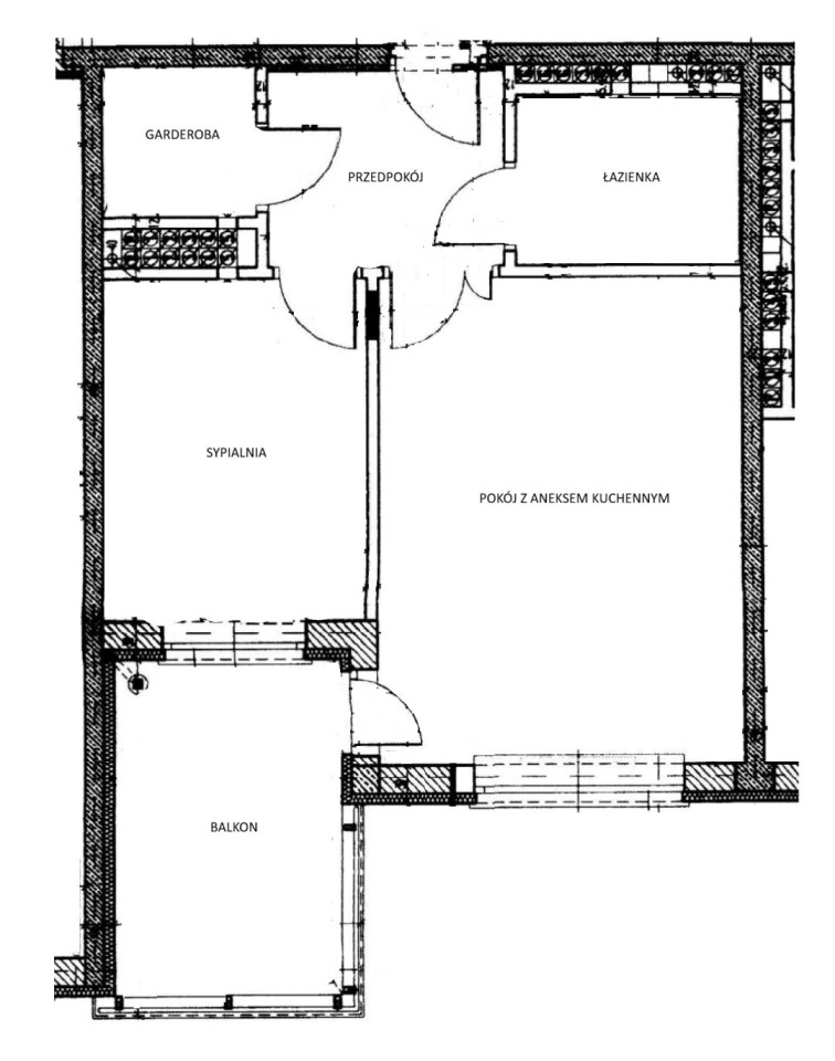
Mieszkanie o bardzo funkcjonalnym rozkładzie pomieszczeń. 
Pokój dzienny z aneksem kuchennym ok. 20m2 - na podłodze mozaika dębowa.
Aneks kuchenny - na podłodze terakota, na ścianie glazura, zabudowa meblami kuchennymi wraz ze sprzętem AGD (płyta gazowa, piekarnik, okap, lodówko-zamrażarka).
Balkon ok. 10m2.
Sypialnia 10m2 - na podłodze mozaika dębowa przykryta wykładziną.
Łazienka 4.2m2 - terakota, glazura, kabina prysznicowa, szafka łazienkowa z umywalką wpuszczoną w blat, pralka.
Garderoba 2.5m2.
Przedpokój 4.3m2 - na podłodze terakota.

BUDYNEK
Mieszkanie położone jest na 2 piętrze w 7-piętrowym budynku z windą.
Budynek został wybudowany w 2002 roku.
Teren osiedla jest zamknięty, strzeżony i monitorowany.

ATRAKCYJNA LOKALIZACJA
Mieszkanie położone jest w zielonej części Mokotowa - Sadybie, w odległości zaledwie 5-6km od centrum Warszawy, w doskonale skomunikowanym punkcie - 300m od budynku znajdują się liczne przystanki autobusowe oraz oddana niedawno linia tramwajowa.
W bliskim sąsiedztwie znajdziemy bogate zaplecze handlowo-usługowe (Centrum Handlowe Sadyba Best Mall, LIDL, Biedronka, Rossmann, piekarnie, kawiarnie i restauracje, paczkomat itp.) oraz rekreacyjne (liczne trasy spacerowe i rowerowe, tereny zielone - Park im. Stanisława Dygata, kawałek dalej Park Sadyba).

STAN PRAWNY
Pełna własność z księgą wieczystą.
Własność gruntu pod budynkiem.

OPŁATY ADMINISTRACYJNE
Czynsz za mieszkanie wynosi 718,34zł/m-c z zawartym funduszem remontowym oraz zaliczkami na media (ciepła i zimna woda, ogrzewanie oraz opłata za wywóz nieczystości).

Pełna galeria zdjęć nieruchomości na stronie www daszkiewicz pl

ZAPRASZAM NA PREZENTACJĘ NIERUCHOMOŚCI!

OFERTA NA WYŁĄCZNOŚĆ - pośrednik odpowiedzialny: Michał Daszkiewicz 505-115-880 (Licencja Zawodowa nr 5967).
Powyższa informacja nie stanowi oferty w rozumieniu Kodeksu Cywilnego.

Nota prawna

Opis oferty zawarty na stronie internetowej sporządzany jest na podstawie oględzin nieruchomości oraz informacji uzyskanych od właściciela, może podlegać aktualizacji i nie stanowi oferty określonej w art. 66 i następnych K.C.

Szczegóły oferty

Symbol oferty DAS-MS-2573
Powierzchnia 41,00 m²
Powierzchnia balkonów/tarasów 10,00 m²
Liczba pokoi 2
Piętro 2
Rodzaj budynku apartamentowiec
Technologia budowlana cegła
Standard
Opłaty w czynszu administracja, CO, Części wspólne, fundusz remontowy, monitoring, ochrona, Winda, wywóz śmieci
Opłaty wg liczników CO, gaz, prąd, woda
Liczba pięter w budynku 7
Stan lokalu dobry
Stan prawny Własność
Mies. czynsz admin. 718 PLN
Instalacje dobre
Balkon jest
Liczba balkonów 1
Rok budowy 2002
Gaz tak - miejski
Woda tak - miejska
Dojazd asfaltowa/kostka
Ogrzewanie miejskie
Winda tak
Liczba wind 1
Usytuowanie jednostronne

Pomieszczenia

Powierzchnia pokoi 20, 10 m2
Podłogi pokoi mozaika parkietowa, wykładzina dywanowa
Typ kuchni umeblowana i wyposażona
Rodzaj kuchni aneks kuchenny
Podłoga kuchni terakota
Typ łazienki razem z wc
Liczba łazienek 1
Powierzchnia łazienki 4.2 m2
Glazura łazienki glazura
Podłoga łazienki terakota
Wyposażenie łazienki kabina prysznicowa, lustro, pralka, umywalka, WC
Liczba przedpokoi 1
Powierzchnia przedpokoi 4.3 m2
Podłoga przedpokoi terakota

Lokalizacja

Kalkulator kredytowy

PLN
%
Wysokość raty

Kalkulator kosztów

PLN
PLN
PLN
PLN
PLN
PLN
%
PLN
Podatek od czynności cywilno-prawnych
Taksa notarialna (opłata notarialna)
VAT od taksy notarialnej (opłaty notarialnej)
Wniosek do WKW
VAT od wniosku do WKW
Prowizja agencji nieruchomości
VAT od prowizji agencji nieruchomości
Wypisy aktu notarialnego - około
RAZEM (cena + opłaty)

Uwaga: mogą wystąpić dodatkowe opłaty za założenie księgi wieczystej oraz ustanowienie hipoteki.

Podobne oferty

oferta na wyłączność
mieszkanie na sprzedaż - Warszawa, Ursynów, Natolin, Na Uboczu

mieszkanie na sprzedaż

Warszawa, Ursynów, Natolin, Na Uboczu
3 pokoje 47,20 m2 14 788,14 zł/m2
oferta na wyłączność
mieszkanie na sprzedaż - Warszawa, Ursynów, Natolin, Żabińskiego

mieszkanie na sprzedaż

Warszawa, Ursynów, Natolin, Żabińskiego
3 pokoje 63,30 m2 12 875,20 zł/m2
oferta na wyłączność
mieszkanie na sprzedaż - Warszawa, Ursynów, Stokłosy, Jana Cybisa

mieszkanie na sprzedaż

Warszawa, Ursynów, Stokłosy, Jana Cybisa
4 pokoje 63,40 m2 12 586,75 zł/m2
oferta na wyłączność
mieszkanie na sprzedaż - Warszawa, Mokotów, Sielce, Stępińska

mieszkanie na sprzedaż

Warszawa, Mokotów, Sielce, Stępińska
2 pokoje 54,30 m2 16 390,42 zł/m2

Napisz do nas

Proszę wypełnić to pole
Proszę wypełnić to pole
Proszę wypełnić to pole
Proszę wypełnić to pole
Trwa wysyłanie...

Ta strona wykorzystuje pliki cookies w celach statystycznych oraz w celu dostosowania naszych serwisów do indywidualnych potrzeb klientów. Zmiany ustawień dotyczących plików cookie można dokonać w dowolnej chwili modyfikując ustawienia przeglądarki. Korzystanie z tej strony bez zmian ustawień dotyczących cookies oznacza, że będą one zapisane w pamięci urządzenia.

rozumiem