Warszawa, Targówek, Staniewicka

Lokal na wynajem

Opis nieruchomości

STANIEWICKA 18

Do wynajęcia wykończone w wysokim standardzie, kompletnie umeblowane i urządzone biuro o powierzchnia brutto 87,27m2 (powierzchni netto 77,37m2) położone na 1 piętrze w budynku biurowym STANIEWICKA 18.

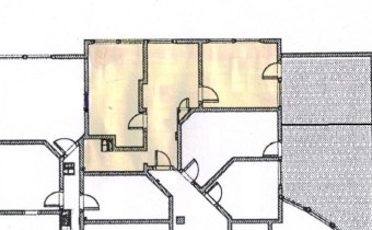
ROZKŁAD POMIESZCZEŃ / STANDARD WYKOŃCZENIA

Biuro składa się z: pokoju recepcyjno-biurowego, pokoju biurowego ze stołem konferencyjnym, przestronnego gabinetu z wyjściem na taras oraz części socjalnej (aneks kuchenny połączony z jadalnią).
Standard i umeblowanie zgodnie ze zdjęciami załączonymi w galerii (z mebli zostanie zabrany jedynie stolik kawowy z gabinetu).

Wysokość pomieszczeń - 300cm.

W lokalu rozprowadzona jest wentylacja/klimatyzacja centralna oraz instalacja grzewcza. 
Do budynku doprowadzony jest światłowód.

OPŁATY
Czynsz najmu wynosi 4800zł netto/m-c (55zł netto/m2).
Opłata eksploatacyjna 1239,24zł netto/m-c (14,20zł netto/m2).

Dodatkowo płatne media: energia elektryczna i ogrzewanie/klimatyzacja.

Czynsz najmu oraz wszelkie opłaty za lokal liczone są od powierzchni brutto zawierającej udział w powierzchni wspólnej budynku.
Powierzchnia lokalu netto - 77.37m2
Powierzchnia lokalu brutto (zawierająca udział w powierzchni wspólnej budynku 1,128)- 87.27m2

Wysokość kaucji gwarancyjnej do indywidualnego uzgodnienia.

W cenie zawarte jest 1 miejsce parkingowe na terenie zamkniętym, opcjonalne w miarę dostępności możliwe jest wynajęcie dodatkowych miejsc parkingowych w cenie 150zł netto za każde dodatkowe.

OPCJA WYNAJĘCIA Z MAGAZYNEM
Opcjonalnie możliwe jest wynajęcie dodatkowej powierzchni magazynowej brutto 27m2 (powierzchnia netto ok. 24m2) zlokalizowanej w innej części budynku, wysokość 450cm. 
Czynsz najmu wynosi 40zł netto/m2 + opłata eksploatacyjna 14,20zł netto/m2 + media (energia elektryczna i ogrzewanie/klimatyzacja).

PRZEZNACZENIE LOKALU: działalność biurowa, biurowo-magazynowa (przy opcjonalnym wynajęciu powierzchni magazynowej)

LOKALIZACJA
Budynek położony jest na warszawskim Targówku. Lokalizacja umożliwia łatwy dostęp do transportu publicznego, w pobliżu znajdują się przystanki autobusowe i tramwajowe (ulica Odrowąża) oraz stacja kolejowa Warszawa Praga. Bliskość mostów zapewnia dogodną komunikację z dzielnicami lewobrzeżnej Warszawy.
W pobliżu znajduje się trasa szybkiego ruchu S8, która zapewnia komfortowy wyjazd z Warszawy w praktycznie każdym kierunku.

BUDYNEK
STANIEWICKA 18 to 2-kondygnacyjny budynek oddany do użytkowania w 2001r., oferujący do wynajęcia 5229m2 powierzchni biurowo-magazynowej. Budynek zapewnia do dyspozycji swoich najemców ok 140 naziemnych miejsc parkingowych.
Standard budynku: dwie windy osobowo-towarowe, recepcja/ochrona budynku, klimatyzacja (5 niezależnych centrali), czujniki dymu, okablowanie elektryczne, komputerowe i telefoniczne, kable światłowodowe, podwieszany sufit, uchylne okna.

PREZENTACJA LOKALU MOŻLIWA JEDYNIE PO TELEFONICZNYM UMÓWIENIU TERMINU SPOTKANIA

W przypadku zainteresowania ofertą lub dodatkowych pytań proszę o kontakt: pośrednik Michał Daszkiewicz 505-115-880 (Licencja Zawodowa nr 5967).

NIE POBIERAMY WYNAGRODZENIA OD NAJEMCY - PROWIZJA 0% !!!

Powyższa informacja nie stanowi oferty w rozumieniu Kodeksu Cywilnego.






 

Nota prawna

Opis oferty zawarty na stronie internetowej sporządzany jest na podstawie oględzin nieruchomości oraz informacji uzyskanych od właściciela, może podlegać aktualizacji i nie stanowi oferty określonej w art. 66 i następnych K.C.

Szczegóły oferty

Symbol oferty DAS-LW-2510
Powierzchnia 87,27 m²
Powierzchnia użytkowa 87,27 m²
Piętro 1
Rodzaj budynku biurowo-usługowy
Standard
Opłaty wg liczników prąd
Liczba pięter w budynku 1
Stan lokalu bardzo dobry
Stan prawny Własność
Typ kaucji do uzgodnienia
Okna PCV
Instalacje KLIMATYZACJA, TELEFONICZNA, OGRZEWANIE
Rok budowy 2001
Rodzaj lokalu jednopoziomowy
Przeznaczenie lokalu biurowo - magazynowy, biurowy
Czynsz najmu netto /m2 55 PLN
Czynsz najmu brutto /m2 68 PLN
Dojazd asfalt
Ogrzewanie miejskie
Winda tak
Liczba wind 2
Przystosowania dla niepełnosprawnych tak
Możliwość parkowania tak
Własny parking tak
Wejście od ulicy

Lokalizacja

Podobne oferty

oferta specjalna
lokal na wynajem - Warszawa, Targówek, Staniewicka

lokal na wynajem

Warszawa, Targówek, Staniewicka
  136,00 m2 45,00 zł/m2

Napisz do nas

Proszę wypełnić to pole
Proszę wypełnić to pole
Proszę wypełnić to pole
Proszę wypełnić to pole
Trwa wysyłanie...

Ta strona wykorzystuje pliki cookies w celach statystycznych oraz w celu dostosowania naszych serwisów do indywidualnych potrzeb klientów. Zmiany ustawień dotyczących plików cookie można dokonać w dowolnej chwili modyfikując ustawienia przeglądarki. Korzystanie z tej strony bez zmian ustawień dotyczących cookies oznacza, że będą one zapisane w pamięci urządzenia.

rozumiem