Warszawa, Mokotów, Siekierki, Polska

Dom na sprzedaż

Opis nieruchomości

MOKOTÓW – Siekierki ul. Polska

Nieruchomość z duszą i potencjałem – nowego właściciela poszukuje atrakcyjny dom położony na terenie zielonego Mokotowa w dogodnej lokalizacji zapewniającej szybkie i wygodne połączenie z centrum Warszawy wraz ze znajdującymi się na posesji: budynkiem gospodarczym, letnią kuchnią i garażem, usytuowane na pięknie zagospodarowanej działce o powierzchni 496 m.

Nieruchomość ta stanowi doskonała propozycja zarówno dla rodziny, osób łączących funkcję mieszkalną z prowadzeniem działalności gospodarczej jak i inwestora szukającego możliwości wynajmu.

DOM

Budynek wybudowany w latach 30-tych ubiegłego wieku, spalony podczas wojny, następnie odbudowany w latach 1945-1946 i gruntownie wyremontowany około 2000 roku, będący w całym tym okresie w posiadaniu jednej rodziny.
Budynek mieszkalny o powierzchni użytkowej 106m (parter z piętrem z oknami połaciowymi, częściowo podpiwniczony).

ROZKŁAD POMIESZCZEŃ

PATER (okna tradycyjne):
Duży salon z wyjściem na taras – na podłodze terakota, kominek, schody na piętro (widok w kierunku południowo-wschodnim).
Kuchnia z wyjściem do ogrodu – na podłodze terakota, zabudowa meblami z AGD (widok w kierunku północno-zachodnim).
Pokój - na podłodze deska (widok w kierunku północno-zachodnim).
Łazienka z wanną i umywalką – terakota, glazura (widok w kierunku południowo-wschodnim).
Łazienka z kabiną prysznicową, szafkoumywalką, wc, bidetem, szafą – terakota, glazura.
Hall z szafą – terakota.

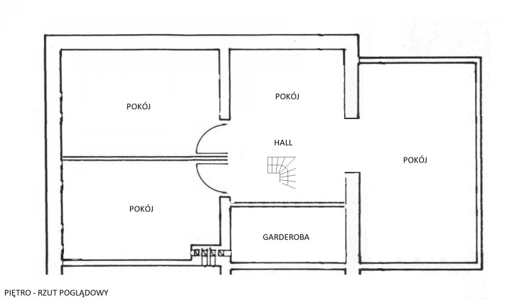
PIĘTRO (okna połaciowe):
Trzy pokoje – na podłodze deska (dwa z widokiem w kierunku północno-zachodnim i jeden w kierunku południowo-wschodnim oraz południowo-zachodnim).
Pokój otwarty na hall ze schodami – na podłodze deska (widok w kierunku południowo-wschodnim i południowo-zachodnim).
Garderoba.

BUDYNEK GOSPODARCZY

Budynek gospodarczy wybudowany w latach 50-tych ubiegłego wieku, gruntownie wyremontowany około 2000 roku.
Budynek gospodarczy o powierzchni użytkowej 132m.

ROZKŁAD POMIESZCZEŃ
Letnia kuchnia – na podłodze terakota, szafki kuchenne AGD (widok w kierunku północno-zachodnim).
Pomieszczenie gospodarcze – na podłodze beton (widok w kierunku północno-zachodnim).
Garaż z kanałem - na podłodze beton (widok w kierunku północno-wschodnim).

TECHNOLOGIA BUDOWY

DOM: ściany zewnętrzne i konstrukcyjne z cegły pełnej grubości 38cm, ściany działowe z cegły pełnej grubości 12cm, strop nad parterem na belkach drewnianych, dach kryty gontem bitumicznym, okna plastikowe, drzwi antywłamaniowe, piec dwufunkcyjny, grzejniki płytowe.
BUDYNEK GOSPODARCZY: ściany zewnętrzne i konstrukcyjne z cegły pełnej grubości 28-32cm, dach kryty blachą trapezową,

MEDIA I INSTALACJE

Media: gaz, woda miejska, szambo (kanalizacja na etapie projektowym), prąd/siła.
Instalacje: elektryczna, wodno-kanalizacyjna, C.O., gazowa i domofon.

LOKALIZACJA

Nieruchomość położona jest na terenie cichego i zielonego Mokotowa w odległości 1km od Wisły. Lokalizacja ta zapewnia szybkie i wygodne połączenie z centrum Warszawy, przystanek komunikacji miejskiej w odległości 100m. Okolica zabudowana niskimi budynkami mieszkalnymi. W pobliżu bogata infrastruktura handlowo usługowa.

Pełna galeria zdjęć nieruchomości na stronie www Daszkiewicz pl.
OFERTA NA WYŁĄCZNOŚĆ - pośrednik odpowiedzialny: Marcin Daszkiewicz 504-217-464 (Licencja Zawodowa nr 6537).

Powyższa informacja nie stanowi oferty w rozumieniu Kodeksu Cywilnego.

Nota prawna

Opis oferty zawarty na stronie internetowej sporządzany jest na podstawie oględzin nieruchomości oraz informacji uzyskanych od właściciela, może podlegać aktualizacji i nie stanowi oferty określonej w art. 66 i następnych K.C.

Szczegóły oferty

Symbol oferty DAS-DS-2579
Powierzchnia 106,00 m²
Powierzchnia działki 496 m²
Liczba pokoi 6
Rodzaj domu jednorodzinny
Technologia budowlana cegła pełna
Standard
Liczba pięter w budynku 1
Garaż wolnostojący
Stan prawny Własność
Okna PCV
Instalacje dobre
Liczba tarasów 1
Zagosp. działki zagospodarowana
Ukształtowanie działki płaska
Pokrycie dachu gont bitumiczny
Pozwolenie na użytkowanie tak
Stan budynku do zamieszkania
Podpiwniczenie częściowo podpiwniczony
Ogrodzenie działki drewniane
Rok budowy 2000
Gaz tak - miejski
Woda tak - miejska
Dojazd asfalt
Ogrzewanie gazowe
Tarasy taras
Drzwi antywłamaniowe tak
Prąd jest
Kanalizacja szambo
Klucze tak

Pomieszczenia

Powierzchnia pokoi 26, 14.35, 10, 7.2, 7.2, 5 m2
Podłogi pokoi deska drewniana, terakota
Typ kuchni oddzielna
Rodzaj kuchni oddzielna widna
Powierzchnia kuchni 14.35 m2
Podłoga kuchni terakota
Typ łazienki razem z wc
Liczba łazienek 1
Powierzchnia łazienki 5.5+5 m2
Glazura łazienki nowego typu
Podłoga łazienki terakota
Wyposażenie łazienki bidet, kabina prysznicowa, lustro, umywalka, wanna, WC

Lokalizacja

Kalkulator kredytowy

PLN
%
Wysokość raty

Kalkulator kosztów

PLN
PLN
PLN
PLN
PLN
PLN
%
PLN
Podatek od czynności cywilno-prawnych
Taksa notarialna (opłata notarialna)
VAT od taksy notarialnej (opłaty notarialnej)
Wniosek do WKW
VAT od wniosku do WKW
Prowizja agencji nieruchomości
VAT od prowizji agencji nieruchomości
Wypisy aktu notarialnego - około
RAZEM (cena + opłaty)

Uwaga: mogą wystąpić dodatkowe opłaty za założenie księgi wieczystej oraz ustanowienie hipoteki.

Napisz do nas

Proszę wypełnić to pole
Proszę wypełnić to pole
Proszę wypełnić to pole
Proszę wypełnić to pole
Trwa wysyłanie...

Ta strona wykorzystuje pliki cookies w celach statystycznych oraz w celu dostosowania naszych serwisów do indywidualnych potrzeb klientów. Zmiany ustawień dotyczących plików cookie można dokonać w dowolnej chwili modyfikując ustawienia przeglądarki. Korzystanie z tej strony bez zmian ustawień dotyczących cookies oznacza, że będą one zapisane w pamięci urządzenia.

rozumiem